Dorpsweg 12
Voor wie de drukke stad achter zich wil laten en 365 dagen per jaar wil wonen met een vakantiegevoel
Aan de Dorpsweg 12 te Callantsoog bevindt zich deze karaktervolle hoekwoning uit 1948. Een woning met een ziel, gelegen op een unieke plek waar rust, ruimte en natuur samenkomen. Voor mensen die uit de hectiek van de stad komen en verlangen naar stilte, frisse zeelucht en een ontspannen leefomgeving, is dit zonder twijfel een oase van rust.
Callantsoog staat bekend om zijn brede stranden, duinen en gemoedelijke dorpssfeer. Vanuit deze woning loopt u binnen enkele minuten naar het strand en de duinen, terwijl ook supermarkt, winkels en restaurants zich op zeer korte loopafstand bevinden. U woont hier buiten, maar nooit afgelegen. Precies zoals het bedoeld is.
De woning is gelegen op een perceel van circa 253 m² en beschikt over een gebruiksoppervlakte wonen van 155 m² en een bruto inhoud van circa 521 m³, gemeten conform NEN2580. Met vier slaapkamers, een royale leefkeuken en een praktische indeling is dit een volwaardige gezinswoning, geschikt voor permanente bewoning of als comfortabel tweede huis.
Een bijzonder pluspunt is de aanwezigheid van twee volledig privé parkeerplaatsen op eigen terrein. In een kustdorp als Callantsoog is dit een zeldzaam en zeer comfortabel voordeel.
Indeling
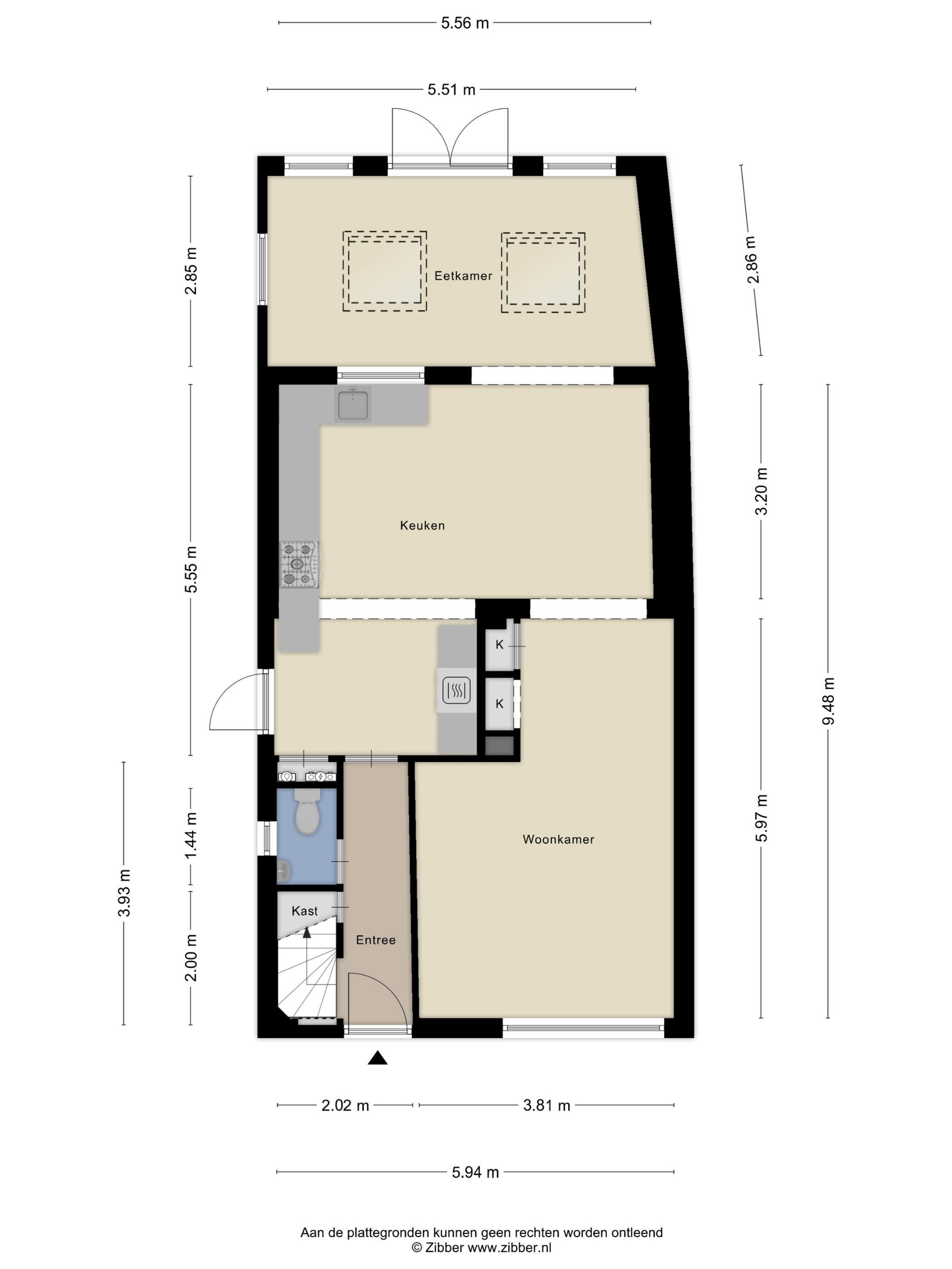
Begane grond
Via de entree komt u in de hal met trapopgang naar de eerste verdieping, toiletruimte en vaste kastruimte.
De woonkamer is gelegen aan de voorzijde van de woning en meet circa 3,81 m x 5,97 m (ca. 22,7 m²). Een prettige, lichte ruimte met voldoende privacy ten opzichte van de keuken.
De keuken bevindt zich centraal in de woning en loopt door in de aanbouw aan de achterzijde. De totale leefkeuken heeft een afmeting van circa 5,55 m x 3,20 m, goed voor ongeveer 30 m².
De keuken is voorzien van een inbouwkeuken (2010) met diverse inbouwapparatuur, waaronder koelkast/vriezer, oven, magnetron/oven, vaatwasser en een Amerikaans gasfornuis. Vanuit de keuken is er een aparte zij-entree vanuit de tuin. De aanbouw beschikt over openslaande deuren naar de achtertuin, waardoor binnen en buiten mooi in elkaar overlopen.
Eerste verdieping
De eerste verdieping biedt ruimte aan drie slaapkamers, een badkamer en een aparte wasruimte.
Slaapkamer 1 (voorzijde): circa 3,54 m x 2,62 m (ca. 9,3 m²)
Slaapkamer 2 (achterzijde): circa 3,08 m x 3,20 m (ca. 9,9 m²)
Slaapkamer 3 (hoofdslaapkamer): circa 3,08 m x 5,05 m (ca. 15,5 m²)
De badkamer, vernieuwd in 2022, meet circa 2,97 m x 2,00 m (ca. 6 m²) en is voorzien van douche, toilet en wastafel. Daarnaast is er een separate wasruimte voor wasmachine en droger.
Tweede verdieping
Via een vaste trap bereikt u de tweede verdieping.
Hier bevindt zich een voorzolder, een vierde slaapkamer van circa 3,52 m x 3,11 m (ca. 11 m², gemeten boven 1,50 m hoogte) en meerdere bergruimtes onder het schuine dak.
In een aparte ruimte is de Intergas CW5-cv-ketel (2023) geplaatst, welke altijd professioneel is onderhouden.
Buitenruimte en berging
De woning beschikt over een achter- en zijtuin met een losse houten berging. De tuin is netjes onderhouden, maar biedt ruimte voor eigen invulling. De voortuin is aangelegd in duinstijl en sluit aan bij de natuurlijke omgeving.
De vrijstaande berging meet circa 2,37 m x 2,30 m en heeft een oppervlakte van 5,4 m². Deze is aangemerkt als externe bergruimte conform NEN2580.
Aan de zijkant van het perceel bevinden zich de twee privé parkeerplaatsen, uitsluitend bestemd voor deze woning.
Oppervlakten (conform meetrapport)
Gebruiksoppervlakte wonen: 147,1 m²
Externe bergruimte: 5,4 m²
Bruto vloeroppervlak: 186,3 m²
Bruto inhoud woning: 520,99 m³
Vraagprijs en aanvaarding
De woning wordt aangeboden met een bieden-vanaf-prijs van € 439.500,- kosten koper.
Dit betreft een startprijs en geen vaste vraagprijs.
De woning is per direct beschikbaar.
As-is verkoop
De woning wordt verkocht “as is, where is”. Dit betekent dat de woning wordt geleverd in de staat waarin deze zich bevindt ten tijde van de koop, met alle zichtbare en onzichtbare gebreken. Verkoper geeft geen garanties of vrijwaringen anders dan wettelijk verplicht. Koper verklaart zich hiermee uitdrukkelijk bekend en akkoord.
Disclaimer
Deze verkoopinformatie is met zorg samengesteld aan de hand van beschikbare gegevens en een meetrapport conform NEN2580 / NTA 2581. Desondanks kunnen aan deze informatie geen rechten worden ontleend. Alle maten en oppervlakten zijn indicatief. Indien voor koper van belang, wordt koper geadviseerd deze zelf te (laten) controleren. De koopovereenkomst komt pas tot stand na ondertekening door beide partijen.
Aan de Dorpsweg 12 te Callantsoog bevindt zich deze karaktervolle hoekwoning uit 1948. Een woning met een ziel, gelegen op een unieke plek waar rust, ruimte en natuur samenkomen. Voor mensen die uit de hectiek van de stad komen en verlangen naar stilte, frisse zeelucht en een ontspannen leefomgeving, is dit zonder twijfel een oase van rust.
Callantsoog staat bekend om zijn brede stranden, duinen en gemoedelijke dorpssfeer. Vanuit deze woning loopt u binnen enkele minuten naar het strand en de duinen, terwijl ook supermarkt, winkels en restaurants zich op zeer korte loopafstand bevinden. U woont hier buiten, maar nooit afgelegen. Precies zoals het bedoeld is.
De woning is gelegen op een perceel van circa 253 m² en beschikt over een gebruiksoppervlakte wonen van 155 m² en een bruto inhoud van circa 521 m³, gemeten conform NEN2580. Met vier slaapkamers, een royale leefkeuken en een praktische indeling is dit een volwaardige gezinswoning, geschikt voor permanente bewoning of als comfortabel tweede huis.
Een bijzonder pluspunt is de aanwezigheid van twee volledig privé parkeerplaatsen op eigen terrein. In een kustdorp als Callantsoog is dit een zeldzaam en zeer comfortabel voordeel.
Indeling
Begane grond
Via de entree komt u in de hal met trapopgang naar de eerste verdieping, toiletruimte en vaste kastruimte.
De woonkamer is gelegen aan de voorzijde van de woning en meet circa 3,81 m x 5,97 m (ca. 22,7 m²). Een prettige, lichte ruimte met voldoende privacy ten opzichte van de keuken.
De keuken bevindt zich centraal in de woning en loopt door in de aanbouw aan de achterzijde. De totale leefkeuken heeft een afmeting van circa 5,55 m x 3,20 m, goed voor ongeveer 30 m².
De keuken is voorzien van een inbouwkeuken (2010) met diverse inbouwapparatuur, waaronder koelkast/vriezer, oven, magnetron/oven, vaatwasser en een Amerikaans gasfornuis. Vanuit de keuken is er een aparte zij-entree vanuit de tuin. De aanbouw beschikt over openslaande deuren naar de achtertuin, waardoor binnen en buiten mooi in elkaar overlopen.
Eerste verdieping
De eerste verdieping biedt ruimte aan drie slaapkamers, een badkamer en een aparte wasruimte.
Slaapkamer 1 (voorzijde): circa 3,54 m x 2,62 m (ca. 9,3 m²)
Slaapkamer 2 (achterzijde): circa 3,08 m x 3,20 m (ca. 9,9 m²)
Slaapkamer 3 (hoofdslaapkamer): circa 3,08 m x 5,05 m (ca. 15,5 m²)
De badkamer, vernieuwd in 2022, meet circa 2,97 m x 2,00 m (ca. 6 m²) en is voorzien van douche, toilet en wastafel. Daarnaast is er een separate wasruimte voor wasmachine en droger.
Tweede verdieping
Via een vaste trap bereikt u de tweede verdieping.
Hier bevindt zich een voorzolder, een vierde slaapkamer van circa 3,52 m x 3,11 m (ca. 11 m², gemeten boven 1,50 m hoogte) en meerdere bergruimtes onder het schuine dak.
In een aparte ruimte is de Intergas CW5-cv-ketel (2023) geplaatst, welke altijd professioneel is onderhouden.
Buitenruimte en berging
De woning beschikt over een achter- en zijtuin met een losse houten berging. De tuin is netjes onderhouden, maar biedt ruimte voor eigen invulling. De voortuin is aangelegd in duinstijl en sluit aan bij de natuurlijke omgeving.
De vrijstaande berging meet circa 2,37 m x 2,30 m en heeft een oppervlakte van 5,4 m². Deze is aangemerkt als externe bergruimte conform NEN2580.
Aan de zijkant van het perceel bevinden zich de twee privé parkeerplaatsen, uitsluitend bestemd voor deze woning.
Oppervlakten (conform meetrapport)
Gebruiksoppervlakte wonen: 147,1 m²
Externe bergruimte: 5,4 m²
Bruto vloeroppervlak: 186,3 m²
Bruto inhoud woning: 520,99 m³
Vraagprijs en aanvaarding
De woning wordt aangeboden met een bieden-vanaf-prijs van € 439.500,- kosten koper.
Dit betreft een startprijs en geen vaste vraagprijs.
De woning is per direct beschikbaar.
As-is verkoop
De woning wordt verkocht “as is, where is”. Dit betekent dat de woning wordt geleverd in de staat waarin deze zich bevindt ten tijde van de koop, met alle zichtbare en onzichtbare gebreken. Verkoper geeft geen garanties of vrijwaringen anders dan wettelijk verplicht. Koper verklaart zich hiermee uitdrukkelijk bekend en akkoord.
Disclaimer
Deze verkoopinformatie is met zorg samengesteld aan de hand van beschikbare gegevens en een meetrapport conform NEN2580 / NTA 2581. Desondanks kunnen aan deze informatie geen rechten worden ontleend. Alle maten en oppervlakten zijn indicatief. Indien voor koper van belang, wordt koper geadviseerd deze zelf te (laten) controleren. De koopovereenkomst komt pas tot stand na ondertekening door beide partijen.
Inschrijven voor deze woning
Vraagprijs
€
439.500,-
Kosten koper
Status
Verkocht (onder voorbehoud)
Aanvaarding
Direct
Kenmerken van het object
Type
woning
Woonhuis
Eengezinswoning
2-onder-1-kapwoning
Eengezinswoning
2-onder-1-kapwoning
Woonoppervlakte
155 m2
Aantal kamers
6 kamers
Slaapkamers
4 slaapkamers
Aantal woonlagen
3
Bouwjaar
1948
Energie label
D
Eigenschappen
TV kabel
Glasvezel kabel
Dakraam
Mechanische ventilatie
Natuurlijke ventilatie
Glasvezel kabel
Dakraam
Mechanische ventilatie
Natuurlijke ventilatie
Parkeerplaats
Op eigen terrein



